Hallo Leute…. Ich wurde vom Haustechnikerforum an euch verwiesen
Wir wollen uns einen Holzvergaser in den Keller stellen.
Benötigt werden ca. 25KW Leistung. Da unser Geldbeutel seid der Euroumstellung um die hälfte geschrumpft ist, haben wir nur ein Budget von ca. 6000 – 8000 Euro. Das Geld muss für die KOMPLETTE Anlage reichen
Der Einbau wird selbst (mit einem privaten Fachmann) erledigt.
Markenholzvergaser wie ETA, Fisch usw… Sind und leider zu teuer. Deshalb bin ich auf den Atmos gekommen.
Aber wie´s oft so ist, hat man gegenüber „günstigen“ Dingen so manche Vorurteile.
Was könnt ihr denn zu dem Atmos GSE 30 sagen?!
Was haltet ihr von dem Solarbayer Ofen?!
http://www.solarbayer.de/Holzvergaserkessel-HVS-E-&-LC.html
Der günstigste Buderus kommt auch von Atmos oder?! Ist der Buderus dank anderer Steuertechnik besser?
Danke
Hi,
der solarbayer HVS- 50 hätte einen großen Füllraum (über 300l).
Das wäre ein Vorteil.
Allerdings hat der Druckgebläse.
Gruß Walter
Soweit mir bekannt ist,vertreibt Buderus den Atmos nicht mehr.
Das sind jetzt (glaube ich mal gehört zu haben)ORLAN.
Aber für 25kw würd ich da schon eine Nummer größer(wenn nicht sogar 2) rangehen.
Sonst wirst du Sklave deiner Heizung.
Minimum 3 – 4000 Liter Puffer.
Hallo AWTLG,
Erst einmal herzlich willkommen bei uns im Forum.
Du hast uns begrüßt und keiner begrüßt Dich, hier ist was eingerissen….
Dann das nächste das man Dich aus diesem Forum zu uns vermittelt hat. Man kann nur staunen.
Du hast Vorstellungen (Finanzen) die Du uns bekannt gibst.
Wir wollen Dir helfen, Du merkst es wird gleich losgeschrieben.
Wir schreiben unsere Ratschläge/Erfahrungen die wir mit unseren verschieden Heizbedingungen einschl. Kesseln haben.
Bitte gehe einmal auf die linke Seite und dort unter Hilfe im unteren Teil. Kopiere dies hier in Deinen Thread und Deine Daten dazu. Du kannst daraus ersehen das viele Faktoren eine Rolle spielen. Dann werden wir Dir antworten.
Wenn Du selber installierst kannst Du nur sparen. Auch dabei werden wir Dir helfen Hydraulikplan etc.
Vielleicht kannst Du Dir gerade jetzt in der Heizperiode einen Atmos in Betrieb und den Heizer ausfragen. Du mußt nur Deine PLZ/Ort angeben. Es wird sich bestimmt einer in Deiner Nähe finden!
Mach es wie Jürgen gesagt hat, dann werden Sie geholfen :-).
Vorläufig reicht aber auch mal ganz grob dein bisheriger Verbrauch an Öl oder was auch immer.
Buderus vertreibt keinen Atmos mehr, die Kessel kommen von Fischer und Dakon.
Die Steuerung am HV selbst ist fast immer ausreichend. Bei der GSE-Serie auf jeden Fall.
Die Heizungssteuerung (Mischer und WW etc.) mußt du dann aber über eine andere Steuerung, oder falls möglich über deine alte (Öler?) realisieren.
Für das Budget ist das bei einem reinen Selbstbau normalerweise machbar. Natürlich gilt, je komfortabler, desto teurer. Willst du nur alle 2 Tage einheizen, wirst du das auch bei Atmos nicht mehr für 6000 schaffen.
Gruß Manuel
Pi mal Daumen GSE 30 ca. 3700.- 2 x 1000 lt Puffer je ab 400.-
Dann kommen die Teile die klein sind aber kosten Cu Rohr Bögen Ventile Verschraubungen und und… Aber dafür spart er seinen Arbeitslohn und kann sagen das habe ich gemacht.
Ich denke immer noch an unseren User holzwurm (Holz ist sein Beruf) wir haben ihm hier das löten beigebracht. Vor einigen Jahren berichtete er hier seine solar selber gelötet!
Aber wir müssen erst einmal Grundwissen erfahren: Wieviel m² wie ist das Haus grob beschaffen wo steht es etc.
Ich hab mit allem Drum und dran (Kessel+Pufferspeicher+Holzlager+Rohrkrams) 8500,-€ bezahlt.
Ich hab mit allem Drum und dran (Kessel+Pufferspeicher+Holzlager+Rohrkrams) 8500,-€ bezahlt.
Bitte ergänze als Anhaltspunkt für unseren Fragenden um welche Größen es sich dabei handelt außer der letzten Position man sieht nicht viel dafür ist der Betrag….. !
Meine Preise von 2005 nützen Dir heute nicht mehr als Vergleich. Die BAFA Summe kann man heute keinem mehr sagen!!! Die Puffer genau so billig!
Ich denke immer noch an unseren User holzwurm (Holz ist sein Beruf) wir haben ihm hier das löten beigebracht. Vor einigen Jahren berichtete er hier seine solar selber gelötet!
@Jürgen
von wem redest du, doch nicht etwa von mir oder
KC 25S. 1900€
750 Liter Erweiterungspuffer (750 waren schon da)
Schornstein war schon vorhaben
Holzlager für 15rm (~750€).
Hab aber auch viel geholfen beim Einbau.
5 Tage hats gedauert bis alles fertig war.
Ich denke immer noch an unseren User holzwurm (Holz ist sein Beruf) wir haben ihm hier das löten beigebracht. Vor einigen Jahren berichtete er hier seine solar selber gelötet!
@Jürgen
von wem redest du, doch nicht etwa von mir oder
Na klar Du warst es….. Hast Du es etwa vergessen?
nein das werde ich auch nie vergessen was ich zum Anfang für ein Problemkind war,
da für danke ich jeden USER der mir bei der hilfestellung geholfen hatte damals
AWTLG,
auch ein herzliches Willkommen von mir!
Habe in HTD ja schon so einiges zu Deinem Anliegen geschrieben. Wollte es zunächst nicht tun, aber als wieder mal mit der üblichen Märchenstunde bzgl. Atmos begann, konnte ich nicht anders.
Wenn Du an Atmos denkst, dann sollte es schon der 30GSE sein. Meiner bringt in der Praxis nur selten über 20 KW. Stückholzlänge 50 cm bedeutet einfach weiniger Arbeit, und die Mehrkosten gegenüber dem 25GSE sind nicht so bedeutend.
Wichtig ist eine passende Hydraulik, da solltest Du Dich unbedingt rechtzeitig mit beschäftigen. Hier sind genug Fachleute, die Dir helfen, auch wenn es am Ende kein Atmos wird.
Gib doch mal Deine PLZ bekannt, vielleicht wohnt ein Atmos-Heizer in der Nähe und lädt Dich zur Besichtigung/Vorführung ein.
Hahneko
Grüß Gott AWTLG,
Herzlich Willkommen… pssst, für was steht den Dein Nick ?
Bin gerade über folgendes gestolpert, evtl. für Dich von Interesse, doch wäre die Meinung der „alten Hasen“ aus dem Forum vorab sehr Wichtig, nicht das es zu unerwünschten Nebenwirkungen kommt.
–> Holzvergaser Atmos GSX 50 Kessel für 4 399.-€
minus dem 1 000.- von der Bafa, klingt doch Interessant, oder ?
Grüße Wong
—
Atmos DC 30gse mit kompletter flammtronik-regelung, dazu mit 2500l puffer (nach möglichkeit nur ein puffer) laddomat 21 mit 63°C patrone. alles zusammen für 6000-8000 wird aber schwierig.
AWTLG,
auch ein herzliches Willkommen von mir!
Habe in HTD ja schon so einiges zu Deinem Anliegen geschrieben. Wollte es zunächst nicht tun, aber als wieder mal mit der üblichen Märchenstunde bzgl. Atmos begann, konnte ich nicht anders.
Wenn Du an Atmos denkst, dann sollte es schon der 30GSE sein. Meiner bringt in der Praxis nur selten über 20 KW. Stückholzlänge 50 cm bedeutet einfach weiniger Arbeit, und die Mehrkosten gegenüber dem 25GSE sind nicht so bedeutend.
Wichtig ist eine passende Hydraulik, da solltest Du Dich unbedingt rechtzeitig mit beschäftigen. Hier sind genug Fachleute, die Dir helfen, auch wenn es am Ende kein Atmos wird.
Gib doch mal Deine PLZ bekannt, vielleicht wohnt ein Atmos-Heizer in der Nähe und lädt Dich zur Besichtigung/Vorführung ein.
Hahneko
Hallo Hahneko
Ich wohne in 73642 Alfdorf.
Bis jetzt steht in unserem Keller ein Buderus Ölbrenner mit 21 KW Leistung. Unser Haus besteht auf 2 Etagen und hat insgesammt 200qm. Das Haus wurde aber in den 80 Jahren erbaut und seit dem nicht mehr isoliert.
Also eine bescheidene Wärmedämmung…. (Mauerwerk mit isolierten Rigipsplatten)
Jährlicher Ölverbrauch ca. 2500 Liter
In beiden Etagen steht ein 6KW Schwedenofen, die schon seid Jahren täglich läufen. Soll auch beibehalten werden….
Ein Holzvergaser mit 25 KW würde bei uns völlig ausreichen.
Allerdings ist der GSE 30 mit seinen 50cm Scheitholzlänge sehr interessant.
Geplant ist ein Holzvergaser + Hygienespeicher (ca. 300 Liter) und 2 x 1000 Liter Heizungspuffer.
Grüß Gott AWTLG,
Herzlich Willkommen… pssst, für was steht den Dein Nick ?
Bin gerade über folgendes gestolpert, evtl. für Dich von Interesse, doch wäre die Meinung der „alten Hasen“ aus dem Forum vorab sehr Wichtig, nicht das es zu unerwünschten Nebenwirkungen kommt.
–> Holzvergaser Atmos GSX 50 Kessel für 4 399.-€
minus dem 1 000.- von der Bafa, klingt doch Interessant, oder ?
Grüße Wong
—
Grüß Dich! Ne, danke! Der GSX 50 ist definitiv zu groß.
AWTLG?! 😉 Anwendungstechniker L… G…. 😉
Atmos DC 30gse mit kompletter flammtronik-regelung, dazu mit 2500l puffer (nach möglichkeit nur ein puffer) laddomat 21 mit 63°C patrone. alles zusammen für 6000-8000 wird aber schwierig.
Flammtronikregelung?!
Brauch ich die?!
Erst wollen wir mal seine Daten haben bevor wir ihm zu diesem oder jenem raten.
Als ich meinen GSE 30 2005 in Betrieb nahm hat er auch brav ohne jegliche Tuning und Atmos Forum was es alles noch nicht gab unsere Wohnung geheizt.
Wie schon geschrieben GSE heizt sehr gut auch ohne jegliche Tuning die es ja auch nicht umsonst gibt. Wieviel hier heizen ihren GSE wie er geliefert wurde. Nur die richtige sec/prim Lufteinstellung kann auch schon einiges bewirken.
Atmos DC 30gse mit kompletter flammtronik-regelung, dazu mit 2500l puffer (nach möglichkeit nur ein puffer) laddomat 21 mit 63°C patrone. alles zusammen für 6000-8000 wird aber schwierig.
Flammtronikregelung?!
Brauch ich die?!
Definitiv sage ich mal NEIN. Es ist eine Regelanlage mit der man sehr viel am Kessel tunen kann. Wenn du mal später, dann…..
Ich hatte geschrieben wir warten erst mal auf Deine Daten aber Du warst etwas schneller wie ich. Wenn die Schwedenöfen mit laufen na ja dies ist Angelegenheit von Euch. Wir waren auch zu Besuch die Heizkörper waren warm aber es brannte und knisterte in einem schwedischen Kamin (mit sec/prim Luft und noch einigen Klappen/Schiebern). Ist etwas fürs Auge.
Aber die 200 m² wollen für 24 Std Wärme aus den Puffern ziehen können.
Das ist unser Grundsatz den wir immer wieder sagen:
Der Heizer soll kein Sklave seiner Heizung sein und nur ständig nachlegen damit es in der wohnung warm bleibt.
(Wir haben einige User die nur am nachlegen sind erstens um die 18 Kw Kessel und dann einen 500 lt. Puffer. So wie der Kessel Wärme erzeugt geht sie in die Heizung. )
Für Deine m² Größe mein Rat trotz der Schwedenöfen: GSE 30 + 2 x 1000 ltz. Puffer. Somit wärest Du auf der sicheren Seite.
Nur so am Rande: Ich habe ein Viertel Jahr im Internet gesucht bis ich den billigsten Kessel Lieferant gefunden hatte. Es schwankte von 2750.- bis 5900.- für ein und denselben Kessel mit den Zubehör!!
Du hast Deine PLZ angegeben. Bitte schau mal in den ersten obersten Beitrag. Dort findest Du vielleicht einige. Deine PLZ ist nicht dabei. Der daibutsu ist lange nicht online gewesen. Aber Du kannst versuchen einen anzuklicken und im eine PN zu schreiben vielleicht hast Du Erfolg. Ich würde es Dir wünschen.
Aber der Solarbayer (Vigas) ist evtl. wirklich nicht ganz schlecht. Mit LC und Bafa für 2300€ in der Bucht (25kW).
Nur das Druckgebläse würde mir halt auch nicht gefallen…
Gruß Marius
Es gibt einige Kessel Hersteller die mit Druck Gebläse arbeiten.
Ein Sauggebläse ist immer von Vorteil als Druck. Er saugt hinten die Abgase aus dem Kessel in das Abgasrohr und ab in die Esse nach oben.
Wenn Du mal Tür aufmachst bei Druckgebläse hm dann……
AWTLG,
zwei Wohnungen, 2500 l Öl plus Holz für Schwedenofen… ich sage mal grob ähnliche Situation wie bei mir, als ich den Vergaser anschaffte. Von daher halte ich einen 30GSE mit 2000-3000 l Puffer für angemessen.
Der Atmos bringt im Serienzustand mit optimalen Lufteinstellungen und mit kleinen Nachrüstungen (dämmen der Kesselrückwand und Unterseite) rd. 80% Wirkungsgrad, und damit bin ich zufrieden.
Hier gibt es aber auch noch Perfektionierer, die den Kessel mit Lufttrennung, Lambdasonde usw. nachgerüstet haben. Ich kann und will das nicht tun, da ich das für eine Aufgabe des Herstellers halte. Mit diesen Umbauten sind dann vielleicht tatsächlich 90% Wirkungsgrad zu schaffen. Ob sich das lohnt (arbeits- und kostenmäßig) muß jeder für sich selbst entscheiden.
Auf alle Fälle läuft der Atmos auch serienmäßig durchaus zufriedenstellend.
Hahneko
Nur so am Rande: Ich habe ein Viertel Jahr im Internet gesucht bis ich den billigsten Kessel Lieferant gefunden hatte. Es schwankte von 2750.- bis 5900.- für ein und denselben Kessel mit den Zubehör!!
Jürgen,
für den nackten DC30GSE dürften heute rd. 3500 Euro fällig sein. Ein Puffer mit 2500 l ist billiger, einfacher zu installieren und hat weniger Verluste als zwei kleine, von daher die richtige Entscheidung. Damit sollte AWTLG auch einen Tag auskommen, außer bei extremer Kälte.
Hahneko
Hallo AWTLG,
gemäß Google-Maps wohne ich nur 38km von Dir entfernt. Bei Bedarf kannst Du dir gerne mal meine Anlage mit Ölkessel und Holzvergaserkessel ansehen. Deinen Gedanken, dass die Anlage möglichst günstig sein soll, ist natürlich richtig, da sich die Holzheizerei ja schließlich rechnen soll. Mein Haus verbraucht auch etwa 2500 Liter Heizöl im Jahr. Meine Anlage besteht aus einem Attack DP (Vorgängermodell vom jetzigen DPX) und einem 700 Liter Pufferspeicher. Der Puffer könnte aus Komfortgründen größer sein. Aber es geht auch so, habe ihn günstig bekommen. Bei Neuanlagen kommen eigentlich nur 1000-Liter Puffer in Frage. Die Anzahl der Puffer wählt man dann nach Kesselgröße, Geldbeutel und Platzbedarf aus. 1000 Liter-Puffer haben eindeutig das beste Preisleistungsverhältnis. Für die Auswahl des Kessels gibt es mehrere Kriterien. Im Holzvergaserforum gibt es übrigens einen schöne Zusammenfassung zum Einstieg in das Thema Holzvergaserkessel. Auch auf meiner Internetseite unter http://www.logic-therm.de findest Du geordnet nach Themen viele Informationen. Auch eine Übersicht über die verfügbaren „Günstig“-Kessel am Markt mit den wichtigsten technischen Daten und ca.-Preisen findest Du dort. Mein Hauptgebiet ist die Regelungstechnik von Heizungsanlagen im Allgemeinen. Vom Holzvergaserkessel bis zur Kesselanlage mit mehreren Kesseln inklusive BHKW mache ich alles. Da ich selbst vor vier Jahren auf der Suche nach einem günstigen Holzvergaserkessel war, habe ich mich mit der Materie intensiv beschäftigt. Die günstigen Kessel bieten nur eine rudimentäre Regelungstechnik. Ohne Basteln und Selberbau geht da gar nichts. Die Hersteller liefern ja noch nicht einmal vernünftige Verrohrungs-Pläne (Hydraulikschemen). Die Regelung einer Holzvergaser-Anlage vor allem in Verbindung mit einem bestehendem Ölkessel ist sehr komplex, wenn sie vernünftig funktionieren soll. Aus diesem Grund habe ich mich dazu entschieden, selber ein Regelsystem für Heizungsanlagen mit Holzvergaserkessel zu entwickeln. Zum Thema Regelungstechnik habe ich auch viele Infos auf meiner Internetseite.
Bei Fragen stehe ich gern zur Verfügung.
Grüße
Olaf
Ich hatte auch einen 21KW Öler.
25KW Atmos (KC 25S) , heize Kohlen,Holzbrikett und Scheitholz.
Schade das der KC nur 33er Scheite mag. 50er sind schon deutlich einfaher in der „Zubereitung“.
1500 Ltr Pufferspeicher reichen, vom Komfort her könnten es ruhig 2500 Ltr sein, aber leider Platzprobleme.
Wenn man die Öltanks leergefahren sind und ich diese dann austausche kommt noch eine 750 oder 1000 Ltr Dose hinzu.
Aber bei unter 500Ltr/a Heizöl dauert das noch 6 Jahre.
JA ATMOS
..wenn du Freude am Feuer hast,(auch mit der Arbeit,die damit zusammenhängt).
..wenn du Interesse an ständigen Verbesserungen(Feintuning) Deines HV hast;
..und Dich im Atmos-Forum mit anderen Holzheizern austauschst;
Hallo ALTLG,
vor drei Jahren stand ich vor der selben Frage, welcher Kessel
ich mir in den Heizraum stellen sollte. Wir müssen 150 qm Wohnfläche, 60 qm Büro und 90 qm Produktionsraum warm halten,
zum größeren Teil schlecht gedämmter Altbau.
Nach langem Suchen und Prospekte wälzen hatte ich mich für den DC30GSE und 2 x 1100 Ltr. Puffer entschieden.
Nach Aussage eines von mit befragten Haustechnikers (Ing.grad)
hielt er eine Leistung von 30KW für reichlich.
Nun, nach drei Jahren, kann ich nur sagen, es war ein Glücksgriff.
Mein Reserveöler läuft nur im Urlaub und gibt sich pro Jahr mit ca. 500 Ltr. zufrieden, mein Holzverbrauch beträgt je nach Winter 30 – 35 Raummeter, wärend der kalten Jahreszeit
heize ich pro Tag 3 – 4 Füllungen und habe die Bude immer lecker warm.
Ich habe mich selbst gewundert, mit wie wenig Futter der Atmos zufrieden ist, und das naturbelassen, ohne irgendwelche
leistungssteigernden An- oder Umbauten.
Ich hoffe, du triffst ein gute Entscheidung
Guten Rutsch!!
WAlli
Vergiss den Hygienespeicher und nimm eine Friwa. Ist nicht teurer, du sparst den zusätzlichen Speicher und du kannst den Puffer besser ausnutzen.
Dazu dann 2500 – 3000l Puffer. Im besten Fall an einem Stück.
Kosten: Kessel (30GSE) ca. 3500 Euro
Puffer 1800 Euro (am besten selbst isolieren)
Mag 400l 350 Euro
Laddomat ab ca. 250 Euro je nach Modell
Friwa 500 – 1400 Euro (Je nach Ausführung / ggf.
Eigenbau)
Bafa – 900 Euro (glaube ich / siehe bafa.de)
ggf. Steuerung / Spironent / Lambdacheck /
Hocheffizienzpumpen / Mischer
(evtl. auch schon vorhanden)
100 Euro – keine Grenze
Kleinkram (Rohre, Kugelhähne, Fittinge, TAS usw.
(ab ca. 500 Euro)
Kann also hinkommen mit 8000 Euro.
Welche Vorlauftemperaturen fährst du im Winter? Wie hoch ist dann die Rücklauftemperatur?
Das sind auch ganz entscheidende Daten für die Auswahl des Puffers.
Braucht jemand 70 Grad Vorlauf und hat einen Rücklauf von 60 Grad bekommt der in 3000l Speicher nicht mal 105kwh unter.
Mit FBH kann man locker 210kwh nutzen.
Noch wichtiger als ein großer Puffer ist aber die richtige Hydraulik! Erst den plan ins Forum stellen, dann erst bauen!
Gruß Manuel
Wow, tolle Leute, tolles Forum! Vielen Dank für die große Hilfe!
@Olaf
Ja gerne, ich werde wahrscheinlich auf Dich zurück greifen. Vielleicht findet sich aber auch jemand mit einem GSE 30 hier im Forum?!
Hier wurde geschrieben das der GSE 30 nur einen Wirkungsgrad von ca. 80% besitzt. Ist das nur bei diesem Ofen so? Oder weichen die Angaben bei anderen Herstellern auch so stark?
Frischwasserstation kenn ich gar ned… Muss ich mir mal genauer anschauen.
Ich werde demnächst mal einen Hydraulikplan zeichnen und in hier rein stellen.
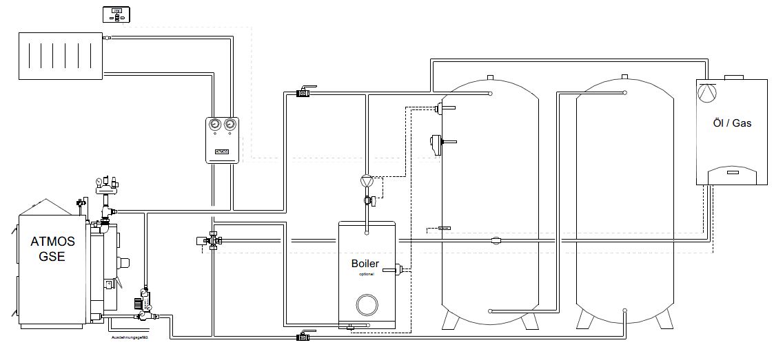
Du brauchst kein Hydraulikplan zu zeichnen, hier das Atmos-originalplan :

mfg
alfons
So, hab mir mal so Frischwasserstadtionen angeschaut…
Echt super Sache, aber leider auch sehr teuer.
Ich glaub ich bleib bei meiner alten Vorgehensweise, da ich hier mehr Vorteile sehe.
Geplant ist ein kleiner Hygienespeicher
z.B der Speicher
Der Durchlauferhitzer des Hygienespeichers soll mit einer Pumpe an den Heizungspuffer angeschlossen werden. Mit einer kleinen „UND“ Steuerung (2 Tauchtermostate) will ich die Puffer so schalten, dass wenn der Hygienespeicher kälter als 50 Grad wird die Pumpe anläuft und meinen Hygienespeicher erwärmt. Die Pumpe darf natürlich nur anlaufen wenn der Heizungspuffer eine gewisse Temperatur (z.B 60 Grad) hat.
Daraus versprech ich mir zwei Vorteile:
1. Geringere Kosten
2. Mehr Puffervolumen
Was haltet ihr von der Idee?!
PS: Was spricht gegen die Speicher die eine Trinkwasserblase im Puffer haben?!
Wäre mir eigentlich am liebsten…
Zumindest wäre es am günstigsten 😉 Und die Arbeit würde sich in Grenzen halten 😉
Buderus hat Dakon aufgekauft…..
Soweit mir bekannt ist,vertreibt Buderus den Atmos nicht mehr.
Das sind jetzt (glaube ich mal gehört zu haben)ORLAN.
Aber für 25kw würd ich da schon eine Nummer größer(wenn nicht sogar 2) rangehen.
Sonst wirst du Sklave deiner Heizung.
Minimum 3 – 4000 Liter Puffer.
PS: Was spricht gegen die Speicher die eine Trinkwasserblase im Puffer haben?!
Wäre mir eigentlich am liebsten…
Zumindest wäre es am günstigsten 😉 Und die Arbeit würde sich in Grenzen halten 😉
Find ich persönlich großer Blödsinn
Weil,wenn Puffer auf 80°C,Warmwasser auch 80°C.
Und ab 60°C mußt du mit erhöhtem Kalkanfall rechnen.
Buderus hat Dakon aufgekauft…..
Soweit mir bekannt ist,vertreibt Buderus den Atmos nicht mehr.
Das sind jetzt (glaube ich mal gehört zu haben)ORLAN.
Aber für 25kw würd ich da schon eine Nummer größer(wenn nicht sogar 2) rangehen.
Sonst wirst du Sklave deiner Heizung.
Minimum 3 – 4000 Liter Puffer.
Hallo Hubschrauber
Danke,
Danke Alfons,
Sehr nett von Dir!
Allerdings sind hier die Puffer ja alle Parallelgeschalten.
Ich würde die Reihenschaltung wählen, da ich schneller warmes Heizungswasser habe.
Hat jemand einen Hydraulikplan mit Reihenschaltung und Ölbrenner?
Hallo Erik
Das ist klar, dass Wasser sollte nicht über 60 Grad gehen.
Darf es auch nicht oder?!
Wollte eigentlich nach dem Puffer sowas dazwischen schalten
Hallo AWTLG,
Hier das bewährte Rentsch’sche Schema i….klick.
Ich würde seperate 300 ltr. Warmwasserspeicher nehmen.
Einen guten Rutsch…


Kessel 2: Buderus G105U,17kw Öl,WWB 300 ltr.
Regelung: RLA Centra Mischer ZG 32
Puffervolumen: Gruß Manfred
Der Kombispeicher mit Trinkwasserblase ist beim HV mit Abstand die schlechteste Variante.
FriWa-Stationen gibt es ab 600 Euro. Da ist dann auch die Pumpe schon drin, die du zur Beladung deines Speichers auch noch brauchen würdest. Zusätzlich brauchst du auch noch ein Mischventil, Schwerkraftbremse usw.
Die Energieverluste der FriWa sind kleiner und der Puffer wird nicht durchmischt.
Wenn Geld klamm ist und ein Boiler etc. vorhanden ist, behält man das. Aber bei Neukauf würde ich mir das nochmal überlegen. Es ist ja wirklich kein großer Preisunterschied.
Gruß Manuel
Hallo zusammen,
das Verfahren der Trinkwassererwärmung beeinflusst den hydraulischen Aufbau der Anlage ganz erheblich. Für jede Variante gibt es ein für und wider. Ich will meine Meinung nicht als die allein richtige darstellen. Aber zumindest erklären, warum ich den klassischen Warmwasserspeicher mit innenliegendem Rohrwärmetauscher für ein Ein- bis Zweifamilienhaus bevorzuge.
Bei Einbau eines Holzvergaserkessels ist meist eine Öl- oder Gasheizung vorhanden. Diese wird so gut wie immer mit einem Warmwasserspeicher traditioneller Bauweise kombiniert. Der Speicher ist also in den meisten Fällen bereits vorhanden und funktioniert. Warum also diesen wegschmeißen und was neues kaufen.
Die notwendige Regelungstechnik für einen Warmwasserspeicher ist sehr simpel und somit auch preiswert. WW-Temperatur messen, wenn zu niedrig, Ladepumpe ein, wenn Sollwert erreicht, Ladepumpe aus. Kurzfristige Schwankungen der Warmwassertemperatur gibt es aufgrund des großen Speichervolumens nicht. Schwankende Warmwassertemperaturen z.B. beim Duschen sind störend.
Die Einbindung einer Zirkulationsleitng ist problemlos möglich.
Die Größe des Warmwasserspeichers ist auf den tatsächlichen Bedarf abgestimmt. Für ein Einfamilienhaus betragt die Speichergröße meist zwischen 100 und 200 Litern. Das entspricht in etwa einem halben Tagesbedarf. Es wird also nur soviel Warmwasser bevorratet, wie nötig.
Durchlaufsysteme für Warmwasser benötigen naturgemäß einen Pufferspeicher für Heizungswasser. Diese sind meist sehr groß dimensioniert. Als Folge wird ein großes Wasservolumen auf Temperatur gehalten. Im Sommer macht es keinen Sinn, mit einem Ölkessel große Mengen Heizungswasser auf Temperatur zu halten.
Sind mehrere Puffespeicher in Reihe geschaltet, muss eine Möglichkeit vorgesehen werden, um die Wärme aus den nachgeschalteten Pufferspeichern in den Pufferspeicher zur Trinkwassererwärmung zu fördern. Die erfordert Aufwand an Installationsmaterial und Steuerungstechnik.
Bei Durchlaufsystemen (Trinkwasser-Wärmetauscher im Pufferspeicher) fällt aufgrund der hohen Warmwassertemperatur viel Kalk aus. Dieser wird durch die hohe Strömungsgeschwindigkeit im Rohrwärmetauscher in das Warmwassernetz eingetragen.
Bei Tank in Tank-Systemen (Warmwasserspeicher ist in den Pufferspeicher integriert) fällt aufgrund der hohen Temperaturen ebenfalls viel Kalk aus. Allerdings wird sich dieser im Speicher absetzen und dort auf ewig bleiben.
Sowohl beim Durchlauf- als auch beim Tank in Tank-System muss die Warmwassertemperatur mit einem Mischventil auf ca. 50°C heruntergemischt werden. Ansonsten besteht Verbrühungsgefahr an den Zapfstellen. Die Einbindung der Zirkulationsleitung in ein solches System ist ohne separate elektronische Regelung zur Aufrechterhaltung der Warmwassertemperatur nicht möglich. Warum das so ist, kann ich bei Bedarf erklären.
Frischwasserstationen haben den Vorteil, dass das Warmwasser nicht auf die Temperatur des Pufferspeichers erwärmt und anschließend wieder durch Beimischung von Kaltwasser auf die gewünschte Temperatur abgekühlt wird. Das Problem mit dem hohen Kalkausfall ist damit behoben.
Auch Frischwasserstationen benötigen einen Pufferspeicher. Das Problem, dass ein stets ein ein großes Puffervolumen auf Temperatur gehalten werden muss, besteht also auch. Wird im Sommer Warmwasser über einen Ölkessel bereitgestellt, hat das große Puffervolumen einen hohen Wärmeverlust zur Folge.
Frischwasserstationen haben einen sehr geringen Wasserinhalt. Dies hat einen sehr großen regelungstechnischen Aufwand zur Folge. Auf Änderung der Warmwasser-Zapfmenge muss auf der Heizungs-Seite innerhalb von Sekunden reagiert werden. Dies ist ohne aufwendige Regelungstechnik nicht möglich. Dies ist auch der Grund, warum Frischwasserstationen so teuer sind. Regelungstecnik ist teuer, schnelle Regelungstechnik ist noch teurer. Frischwasserstationen mit guter Regelgüte sind deshalb in der Anschaffung deutlich teurer als ein Warmwasserspeicher mit Rohrwärmetauscher (dieser ist meist sogar vorhanden und somit kostenlos).
Dies sind meine Argumente für die Beibehaltung simpler und kostengünstiger Technik in Form eines Warmwasserspeichers mit innenliegendem Rohrwärmetauscher.
Grüße
Olaf
Hallo nochmal,
zum sogenannten Rentschen Schema habe ich zwei Anmerkungen.
Vor einigen Tagen war hier im Forum Restwärmeausnutzung in Verbindung mit Laddomat ein Thema. Dabei war auch ein Link zu einer Funktionsbeschreibung des Laddomaten. Dies hat mich dazu bewogen, mir die Funktionsweise des Laddomaten näher anzusehen und mir über die Funktion der Schwerkraftzirkulation Gedanken zu machen.
Die Bedienungsanleitung des Laddomaten schreibt zwei Dinge bei der Installation explizit vor:
Die Puffer dürfen nicht in Reihe geschaltet werden. Ansonsten ist die Schwerkraft-Zirkulation nicht sichergestellt.
Der Abgang zur Heizung darf nicht zwischen Ladomat und Puffer erfolgen. Die im Laddomat integrierte Rückschlagklappe führt bei diesem Aufbau zu einer Fehlzirkulation des Heizungswassers, indem es im Laddomat vom Rücklauf zum Vorlauf fließt (statt durch den Pufferspeicher). Dies hat in den meisten Fällen einen erhöhten Installationsaufwand zur Folge (vom Kessel zum Puffer, vom Puffer zur Heizung, also meist doppelte Rohrführung)
Das Schema enthält somit zwei gravierende Fehler. Wieder ein Beweis dafür, dass Heizung komplizierter ist, als es auf den ersten Blick erscheint.
Außerdem ist aus meiner Sicht ist der Laddomat zu teuer. Andere Produkte sind deutlich günstiger. Selbst die Kombination aus Motormischer und separater Pumpe ist günstiger und bietet obendrein viele Vorteile.
Grüße
Olaf
Hallo Olaf,
zum Original Laddomat ist mir auch zu teuer gewesen.
Ich habe Eigenbau ein ESBE mit einem Thermoeinsatz (Ventil) 61°. Drei Ventile je Eingang und eine Pumpe. ESBE hat 2005 um die 60 € gekostet + Ventile + Pumpe bestimmt weniger als so ein Laddomat. Drei Temp Sensoren an die jeweiligen Rohrenden.
Ich will aber im Frühjahr umbauen auf dreiwege Centramischer.
Thema Warmwasser:
Mein externer Viessmann Vitocell 300 Warmwasser Puffer hängt parallel an den beiden 1000 lt Puffer dran. Er bekommt also gleiche Aufladung bis > rund 85°. Im Warmwasserausgang hängt auch wieder ein ESBE aber manuell einstellbar dran. Eingestellt auf rund 55° kann ich doch wesentlich mehr Warmwasser entnehmen aus dem Puffer als wenn die Grundtemperatur des Puffer nur was weiß ich auf 55° aufgeheizt wäre, oder? Dazu kommt noch eine Zirkulationsleitung (zwei Etagen hoch) die trotz eingebauter Umwälzpumpe auch so funktioniert nach dem Prinzip Wärme steigt nach oben.
@ AWTLG,
Wie Du gefunden hast so einen ESBE Mischer habe ich als Ausgang zu meinem WW.Unter der schwarzen Kappe ist ein Rad zum einstellen der Temp.
@manter. Wozu brauche ich bei einem normalem WW-Speicher ein Mischventil? Kann ihn doch gleich nur auf die gewünschte Temperatur aufladen.
@jürgen: Wenn du deinen WW-Speicher so hoch heizt, hast du ja wieder das Kalk-Problem. Warum nicnht nur 55°C und ohne ESBE? 300l sind doch mehr als ausreichend?! Oder wieviele Menschen werden damit bedient? Ich habe 115l für 2 Personen. Funktioniert problemlos. OK, wenn ich neu kaufen würde, würde ich auch 300l nehmen. Aber nur auf 55°C aufheizen. Evtl. würde ich Edelstahl kaufen. Auf jeden Fall auf großen Wasserinhalt der Rohrschlange achten!
Gruß Marius
Ich kann eine so hohe WW Puffer Temp fahren, weil wir kein Kalkproblem haben. Ein Vorteil.
@ marius: Ich hatte vom Kombispeicher gesprochen.
@ Olaf: Ich hatte ja auch gesagt, wenn Boiler vorhanden, dann behalten. Aber wenn jemand einen Kombi neu kaufen möchte, rate ich immer zur Friwa.
Der große Puffer hat wenn er ordentlich isoliert ist auch keine höheren Wärmeverluste als ein kleiner fertig isolierter Kombipuffer. Die Isolierung ist besser und eine Puffertemperatur von 50 Grad ist für die Friwa auch dicke ausreichend.
Vom Pufferspeicher kann man ja auch nur den oberen Teil erhitzen. Z.B. 500l. Dadurch läuft der Öler dann auch nur noch 1x pro Tag an, somit läuft er viel effizienter, erhitzt aber nicht unnötig viel Wasser.
Gruß Manuel
OH, Sorry!
Wer lesen kann…
Hallo AWTLG,
also Kombispeicher (Tank-in-Tank) in Verbindung mit Holzvergaser finde ich auch absolut bescheiden. Spreche da leider aus Erfahrung, haben so eine Krücke im Keller stehen. Das einzige was man damit gewinnt ist ein Haufen Ärger. Die Suchfunktion müsste mit Einschränkung auf meinen Usernamen da einiges an Ergebnissen liefern.
Externer Wasserspeicher oder FriWa hat beides seine Vor- und Nachteile. Würde heute sicher zur (Eigenbau-) FriWa tendieren.
Ist denn evtl. mal geplant eine Solaranlage nachzurüsten? Wäre sinnvoll das in dem Fall vorzubereiten und wäre auch ein Argument für die FriWa.
Hast du schon einen Dreiwegemischer im Heizkreis?
Was machst du beruflich? Vielleicht würde sich zur Steuerung der Anlage eine SPS als günstige Lösung anbieten.
DC 30 GSE klingt für mich recht vernünftig, 2000l Puffer sollten es mindestens sein 3000l wären besser. Wie sind die Platzverhältnisse? Ein weiterer Speicher lässt sich auch später auch nachrüsten wenn man ein paar Sachen beachtet.
Viele Grüße,
Michael
Ich verstehen icht was ihr gegen externe Wasserspeicher habt?
Die kosten keine 600€ wie eine Friwa.
Haben noch den Vorteil das Sie Standortmässig weiter weg vom Kessel stehen können.
Und ich habe es so gelöst:
Mein Puffer ist der Zenralspeicher dort geht Solar über PWT rein und Atmos rein. Und von dort in BW bzw. Heizug.
Vorteil ist das ich keinen teueren Solarspeicher brauche oder sonst was einfach Blechdose plus BW Speicher und den PWT mit 2Stk. Pumpen für Solar.
Ein weiterer Vorteil ist selbst wenn ich mal zu Spät komme zum Heizen und Puffer ist leer dann hab ich wenigstens warmes BW da BW immer Vorrang hat bei mir.
Steuerungsmässig geht das ganz einfach mit jeder popligen Solarregler für 150€
Bitte melden Sie sich an oder erstellen Sie ein Konto um Antworten schreiben zu können

